Home - Services - Project Profiles - The Company - Brochure - Contact

 

AMENTA&CO

www.plazamayorhartford.com

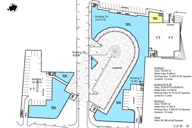
Plaza Mayor
Hartford, Connecticut